ملف التصاميم

طابقان Dar 4M2.1 Balconia

نظرة عامة قصيرة

Dar 4M2.1 Balconia تتكون من أربع وحدات و تحتوي على طابقين يفصلان منطقة المعيشة عن النوم. في الطابق السفلي توجد غرفة المعيشة التي تمكنك من الوصول إلى الشرفة المكشوفة أما الطابق الأول فيحتوي على شرفة أمامية و خلفية يمكن الوصول اليهما من خلال غرفتي النوم المتعلقة بهما.

هل تعلم، أننا نقدم جميع الوحدات بجودة و معايير أوروبية؟ مثل جميع الوحدات الأخرى في ملف التصاميم يمكن توسيع وحداتك بشكلٍ مثالي مع الحفاظ على الخصوصية كلما إزداد عدد أفراد أسرتك أو رغبت في رعاية والديك.

يشمل السعر الضرائب المحلية و الأسس المعيارية. لا يشمل خدمات الموقع، النقل و التصاريح.

2 طابق

120 m2

2 غرفة

1 حمام

مميزات

Ref.Nr. DL000062

  • فناء
  • المدفأة
  • تكييف الهواء
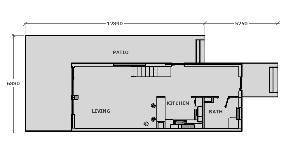
استكشاف مخطط الأرضية

1 غرفة معيشة ، 1 غرفة طعام ، 1 مطبخ ، 1 حمام
2 غرف نوم ، 1 حمام ، 2 شرفات

العنوان

مجمع الفتح شارع علي بن ابي طالب الكرارت
N 30 Bloc C - 92000
العرائش - المغرب

للتواصل

الايمايل: عنوان البريد الإلكتروني هذا محمي من روبوتات السبام. يجب عليك تفعيل الجافاسكربت لرؤيته.

الهاتف: +212 539 91 27 22