ملف التصاميم

متعدد Dar 2MM.1 Multi Fransa

نظرة عامة قصيرة

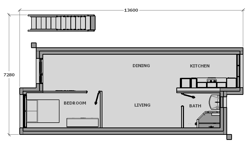
تم تصميم هذا المثال باستخدام ست وحدات من Dar 2M1.2 Fransa with Ref.Nr. DL001007 لبناء 3 شقق جميلة. كل شقة ستوفر منزلاً كاملاً للعائلات الشابة أو المسنين الذين يرغبون في تخصيص بعض المساحة للأحفاد. يحتوي على غرفتي نوم و منطقة مفتوحة للطهي مع مساحة معيشة لتأثيثها و تكيفها حسب ما يناسبك, إضافةً إلى حمام صغير. توفر هذه الوحدات السكنية كل ما تحتاجه الأسرة للعيش بسعادة.

هل تعلم، أننا نقدم جميع الوحدات بجودة و معايير أوروبية؟ مثل جميع الوحدات الأخرى في  ملف التصاميم يمكن توسيع وحداتك بشكلٍ مثالي مع الحفاظ على الخصوصية كلما إزداد عدد أفراد أسرتك أو رغبت في رعاية والديك.

يشمل السعر الضرائب المحلية و الأسس المعيارية. لا يشمل خدمات الموقع، النقل و التصاريح.

3 طابق

180 m2

6 غرفة

3 حمام

مميزات

Ref.Nr. DL000014

  • تدفئة
  • تكييف الهواء
استكشاف مخطط الأرضية

1 غرفة معيشة ، 1 غرفة طعام ، 1 مطبخ ، 2 غرف نوم ، 1 حمام
1 غرفة معيشة ، 1 غرفة طعام ، 1 مطبخ ، 2 غرف نوم ، 1 حمام
1 غرفة معيشة ، 1 غرفة طعام ، 1 مطبخ ، 2 غرف نوم ، 1 حمام

العنوان

مجمع الفتح شارع علي بن ابي طالب الكرارت
N 30 Bloc C - 92000
العرائش - المغرب

للتواصل

الايمايل: عنوان البريد الإلكتروني هذا محمي من روبوتات السبام. يجب عليك تفعيل الجافاسكربت لرؤيته.

الهاتف: +212 539 91 27 22