ملف التصاميم

طابق واحد Dar 3M1.2 Andalusia

نظرة عامة قصيرة

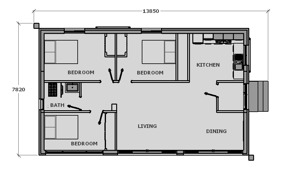
Dar 3M1.2 Andalusia تتكون من ثلاث وحدات بحيث يحتوي هذا المنزل الفسيح على الكثير من الإطلالات على جانب واحد، هذا التصميم الرائع مثالي لملائمة الحياة في الهواء الطلق إذ توفر لك النوافذ الكثير من السطوع و تربطك بالطبيعة. منزل فخم للغاية بسعر مناسب.

هل تعلم، أننا نقدم جميع الوحدات بجودة و معايير أوروبية؟ مثل جميع الوحدات الأخرى في ملف التصاميم يمكن توسيع وحداتك بشكلٍ مثالي مع الحفاظ على الخصوصية كلما إزداد عدد أفراد أسرتك أو رغبت في رعاية والديك.

يشمل السعر الضرائب المحلية و الأسس المعيارية. لا يشمل خدمات الموقع، النقل و التصاريح.

1 طابق

90 m2

3 غرفة

1 حمام

مميزات

Ref.Nr. DL001001

  • تدفئة
  • تكييف الهواء
  • سطح
استكشاف مخطط الأرضية

1 غرفة معيشة ، 1 غرفة طعام ، 1 مطبخ ، 3 غرف نوم ، 1 حمام

العنوان

مجمع الفتح شارع علي بن ابي طالب الكرارت
N 30 Bloc C - 92000
العرائش - المغرب

للتواصل

الايمايل: عنوان البريد الإلكتروني هذا محمي من روبوتات السبام. يجب عليك تفعيل الجافاسكربت لرؤيته.

الهاتف: +212 539 91 27 22