ملف التصاميم

متعدد Dar 3MM.1 Multi Andalusia + Fransa

نظرة عامة قصيرة

غالبًا ما تُعتبر المباني المركبة أكثر أمانا و ذات تركيبة أفضل من المنشأت التقليدي. بناء الوحدات أصبح أكثر شعبية، و أحد أهم فوائده هو تقليل الوقت في موقع البناء.

إذا كنت تفضل الاستثمار الكبير، فمن الممكن حجزنا لبناء مبنى سكني أو مكتب. يمكن إنجاز التصميم الداخلي والخارجي حسب ما يناسبك.

في هذا المثال تم التجميع بين:

54 وحدة من Dar 3M1.2 Andalusia / Ref.Nr. DL001001 و 12 وحدة من Dar 2M1.2 Fransa with Ref.Nr. DL001007 مع مساحة معيشية خارجية خضراء!

هل تعلم، أننا نقدم جميع الوحدات بجودة و معايير أوروبية؟ مثل جميع الوحدات الأخرى في ملف التصاميم يمكن توسيع وحداتك بشكلٍ مثالي مع الحفاظ على الخصوصية كلما إزداد عدد أفراد أسرتك أو رغبت في رعاية والديك.

يشمل السعر الضرائب المحلية و الأسس المعيارية. لا يشمل خدمات الموقع، النقل و التصاريح.

3 طابق

1980 m2

64 غرفة

21 حمام

مميزات

Ref.Nr. DL001002

  • حديقة منزل
  • فناء
  • تدفئة
  • تكييف الهواء
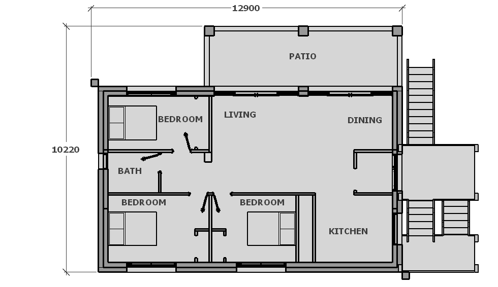
استكشاف مخطط الأرضية

1 غرفة معيشة ، 1 غرفة طعام ، 1 مطبخ ، 3 غرف نوم ، 1 حمام
1 غرفة معيشة ، 1 غرفة طعام ، 1 مطبخ ، 3 غرف نوم ، 1 حمام
1 غرفة معيشة ، 1 غرفة طعام ، 1 مطبخ ، 3 غرف نوم ، 1 حمام

العنوان

مجمع الفتح شارع علي بن ابي طالب الكرارت
N 30 Bloc C - 92000
العرائش - المغرب

للتواصل

الايمايل: عنوان البريد الإلكتروني هذا محمي من روبوتات السبام. يجب عليك تفعيل الجافاسكربت لرؤيته.

الهاتف: +212 539 91 27 22